STUDENT & UNGDOMSBOSTÄDER

PRISVÄRDA LÄGENHETER FÖR STUDENTER & UNGA
Är du mellan 16 och 35 år kan du söka våra ungdomsbostäder. De är mindre lägenheter med låg hyra som är till för att unga lättare ska komma in på bostadsmarknaden.

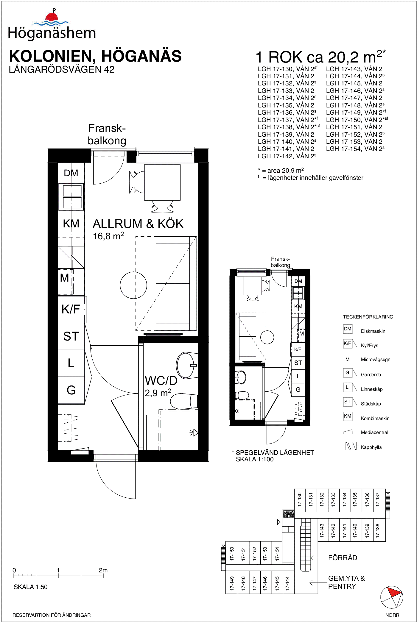
Fastigheten är ett förtätningsprojekt i två våningar i anslutning till det befintliga bostadsområdet. Bottenvåningen inrymmer ett LSS-boende i Höganäs Kommuns regi. På andra våningen har Höganäshem byggt 25 lägenheter för studenter och unga upp till 35 år.

Lägenheterna är yteffektiva och klarar de moderna byggkrav som krävs idag. Trots sin yteffektivitet finns det både kombimaskin (tvätt/tork) och diskmaskin i lägenheterna, samtidigt som man har ett gemensamt "vardagsrum" i korridoren för umgänge. I korridoren finns det separat förråd om ca 2 kvm.

Rummet har vita väggar och en melerad plastmatta i toner av vit/grå/svart, köket har vita skåpsluckor med kromade handtag, svartmönstrad bänkskiva, kyl/frys. Toaletten har vita väggar med svart våtrumsmatta, dusch och spegelskåp över handfat.

OBS: Endast en vuxen får bo i varje lägenhet.

Området ligger alldeles i utkanten av centrala Höganäs, ett stenkast från bland annat en grundskola, kommunens gymnasium och en större matvaruaffär samt närhet till allmänna kommunikationer.

HUR SÖKER JAG UNGDOMSBOSTAD?
För att söka måste du vara registrerad i vår bostadskö, precis som med våra övriga bostäder erbjuds bostaden till den sökande som har mest köpoäng och som är godkänd enligt vår uthyrningspolicy. Du hittar alla lediga lägenheter här. Finns det inga publicerade har vi inga lediga just nu.
Studerande har förtur till lägenheterna.

VEM KAN SÖKA?
Ungdomsbostaden är tänkt som en första bostad. Du måste vara under 35 år när du söker lägenheterna. 

  • För att få hyra en ungdomslägenhet behöver du uppfylla kraven i vår uthyrningspolicy. 
  • Är du under 18 år ska målsman stå på hyreskontraktet.
  • Höganäshem godkänner inga andrahandsuthyrningar eller byten av ungdomslägenheterna.
  • Är du studerande har du förtur till de lediga lägenheterna. Detta skall kunna styrkas via antagningsbesked eller registreringsbevis i digital form.

VAD HÄNDER MED MINA POÄNG?
För att du i framtiden ska ha en bra möjlighet att flytta vidare till ett annat boende behåller du dina poäng som du samlat ihop innan du fick ungdomsbostaden. Men för att du ska fortsätta behålla köpoängen måste du årligen uppdatera dina uppgifter på Mina sidor.

VAR FINNS UNGDOMSBOSTÄDERNA?
I nuläget hittar du våra ungdomsbostäder i kvarteret Kolonien, som är ett kombinerat student- och ungdomsboende.

Visionsbild kolonien studentboende

Studentlägenheter

FAKTA

Antal lägenheter:
25 st

Storlek:
20,2 m2

Hyra: 
4388kr/månaden, exkl vatten och hushållsel 

Adress:
Långarödsvägen 42

 

Med reservation för eventuella avvikelser. Bilder och ritningar är en visionsbild och kan avvika från verkligheten.

Mer information

LEDIGA LÄGENHETER